P宿迁产品展示PRODUCT
您当前所在的位置:首页>>宿迁产品展示>>宿迁投切开关
宿迁电抗器
宿迁电容器
宿迁控制器
宿迁投切开关
宿迁高压无功补偿成套装置
宿迁复合开关

1.jpg


 

功能用途

运用于400V低电压系统中,作为无功补偿电容器专用投切开关,具有投入无涌流、切除无过电压,动作准确快速,功耗低等特点。安装方式灵活,既支持35毫米导轨安装,又支持螺丝固定安装。

 

型号说明

3.png

 

技术参数

投切容量

三相共补容量≤40kVar相分补容量≤13.3kVar

电压

380V/220V AC三相四线

使用寿命

≥40万次

额定频率

50Hz

控制电压

DC 12V±5V

控制端电流

≤10mA

响应时间

40ms

再投延时

﹥1000ms

整机功耗

3VA

连续每次接通间隔

100 ms

接触压降

100mV

接点耐压

1600V AC

绝缘等级

在正常大气条件下≥10MΩ

工作环境温度

-25~+50℃

湿度

40℃时50%2090%

海拔

≤2500m,如特殊海拔要求订货时特别注明

 

规格与外形尺寸

型号

投切容量(kVar

外形及安装尺寸(mm

L

W

H

E

F

三相共补

SYFK-10G

10

143

90

100

143

40

SYFK-20G

20

143

90

100

143

40

SYFK-30G

30

143

90

100

143

40

SYFK-40G

40

143

90

100

143

40

单相分补

SYFK-10F

3×3.33

143

90

100

143

40

SYFK-20F

6.67

143

90

100

143

40

SYFK-30F

10

143

90

100

143

40

SYFK-40F

13.3

143

90

100

143

40


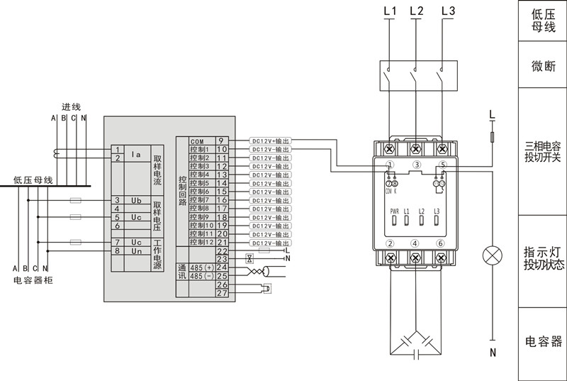
接线示意

SYFK-G

4.jpg


SYFK-F


5.jpg

电话:0510-86502411      传真:0510-86518028
邮箱:sy-electric@126.com     地址:江阴市青阳镇工业园华澄路5号

江阴市上源电气科技有限公司是较早开发与生产滤波电抗器,智能抗谐电容器,电力电容器的专业企业,拥有超过20年的研发制造。 CopyRight © 2018-2020   All Right Reserved   江阴市上源电气科技有限公司 备案号:苏ICP备20046538号-1

手机扫一扫 进入官网